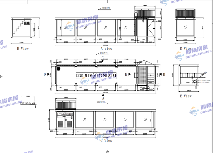
表演泳池

型号:泳池
尺寸:L12000*W2500*H2400
材质:集装箱钢框架结构
颜色:红色
配置:设备房,过滤循环系统,消毒系统,七彩灯,楼梯,进 水排水,进电箱,配电箱,漏电保护
可选配置:玻璃,造浪系统,加热系统,按摩浴缸,浅水平台,栏 杆扶手,淋浴,洗手间
产品详情

8db85aa06ed3d6c1d7c64e0c5345b45.jpg2021_12_07_22_55_IMG_2946.jpg4811437a7d9c0e998a3de2469f74e7a.jpgd5110e3a1d68e496b312586696ff5fa.jpg6589716da78489196b7384aa7536d8b.jpg6c3a1fdbd92f93ffa04a0356c89d1f6.jpg7ce906bf850dd34e4635da2465ae64b.png




公司简介
公司产品主要以设备设备方舱、气象方舱、宿营方舱、酒店民宿、推拉折叠房、别墅、集装箱泳池为主,满足客户在监测、急救、住宿、办公、娱乐等各方面的需求。被广泛应用于军事、医疗、石油、气象、采矿、环保、商业、旅游等行业  



联系我们
联系地址:广州市番禺区沙湾镇古坝西村古龙路265-2号 联系电话:13380901686
邮箱 : dgfangwu@126.com
扫码关注